Однокомнатная квартира с детской — советы ИКЕА (фото)
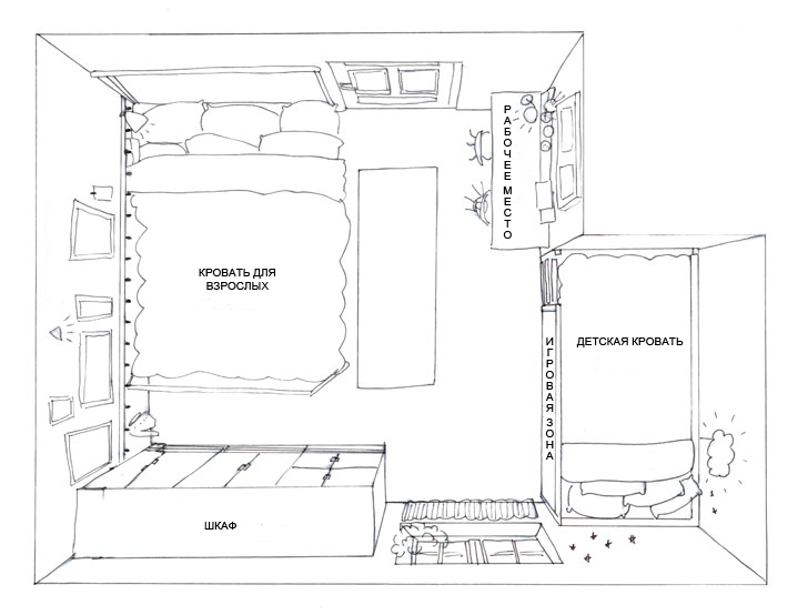
За что мы еще любим ИКЕА, так это за актуальность и практичность. Компания прекрасно понимает, что далеко не всем повезло иметь огромную жилую площадь, поэтому постоянно выпускает продукцию для небольших пространств и делиться идеями по их оформлению. Сегодня шведские дизайнеры предлагают нам посмотреть как можно ужиться в одной комнате родителям и детям, ведь такая ситуация, согласитесь, встречается. Эта комната отлично зонирована, таким образом каждый из членов семьи имеет свой уголок для отдыха и досуга. Смотрим!





Уголок для игр





Детская кровать чердак



